MAISON EVO-124
Maison champêtre de plain-pied
2,800.00 $
Description
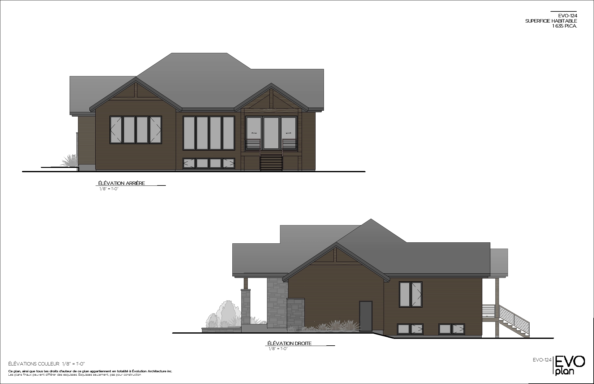
Découvrez notre plan de maison EVO-124, un bijou champêtre de plain-pied, idéal pour une vie harmonieuse. Avec son garage double et son pratique mudroom, chaque détail est pensé pour votre confort.
Le rez-de-chaussée offre un espace ouvert accueillant, parfait pour les réunions en famille ou entre amis. Deux chambres, dont une suite parentale spacieuse, garantissent intimité et relaxation.
Envie d’encore plus d’espace? L’aménagement du sous-sol permet d’ajouter trois chambres supplémentaires et une superbe salle familiale, offrant des possibilités infinies pour créer le foyer de vos rêves.
Offrez-vous le luxe et le charme champêtre avec le plan EVO-124.
Superficies
Coût de construction
Prix moyen compris entre 516 100 $ et 698 300 $ + taxes
Ce prix n’inclus pas le coût du sous-sol.
Vous souhaitez ajouter un sous-sol fini ?
Utilisez notre calculatrice budgétaire pour estimer le coût total selon vos besoins!
*Prix à titre indicatif. Pour une estimation précise, veuillez consulter un entrepreneur en construction.
CALCULER LE COÛT DE CONSTRUCTION DE VOTRE MAISON?
Le prix de construction d’une maison dépend de plusieurs facteurs. Chez Évolution Architecture, nous présentons toujours une estimation réaliste qui reflète les conditions actuelles du marché résidentiel au Québec en 2025. Les coûts sont calculés au pied carré, en tenant compte de matériaux de qualité et des standards de construction en vigueur.
Deux façons d’aborder les coûts
Autoconstruction : vous prenez en charge la gestion du chantier et certains travaux, ce qui réduit les coûts mais demande plus d’implication.
Clé en main : un entrepreneur général s’occupe de tout, du début à la fin, pour vous livrer une maison prête à habiter.
Ce qui influence le prix
- Le type de finition (intérieure et extérieure) que vous choisirez.
- Les particularités du terrain : orientation, pente, accès, services disponibles.
- Le coût des matériaux et de la main-d’œuvre dans votre région.
- La période de l’année où la construction est réalisée (les délais et la disponibilité des équipes peuvent varier).
Ce qui est inclus
Nos estimations de construction sont préparées à partir d’un fichier interne qui tient compte de plusieurs variables propres à chaque projet. L’objectif n’est pas de donner un prix figé, mais une fourchette réaliste qui reflète les choix du client et les conditions du terrain.
- La superficie et le type de maison
Le coût de base est établi à partir de la superficie habitable et du type de construction (plain-pied, étage, dalle sur sol, etc.). C’est ce qui permet d’obtenir un prix au pied carré adapté au projet.
- Les postes budgétaires essentiels
Nous décomposons ensuite le budget en différentes catégories : - structure et enveloppe du bâtiment,
- finition intérieure et extérieure,
- mécanique (plomberie, chauffage, ventilation),
- aménagements extérieurs (terrassement, fosse septique, puits, dynamitage s’il y a lieu).
- Chaque poste est ajusté selon les besoins réels du terrain et du client.
- Taxes et extras
Les prix affichés sur notre site excluent les taxes. Certains éléments optionnels ou particuliers (matériaux haut de gamme, aménagements paysagers complexes, systèmes énergétiques spécialisés) sont chiffrés séparément afin de garder une vision claire des coûts de base et des ajouts.
- Un outil de comparaison
Ces estimés servent surtout à donner une idée concrète de l’ordre de grandeur des coûts liés à nos plans. Ils permettent de comparer différents modèles et de valider si le projet correspond au budget disponible avant de demander des soumissions détaillées auprès d’entrepreneurs.
Nos estimations comprennent les éléments essentiels d’une maison neuve : structure, isolation, plomberie, électricité, ventilation, revêtements de base, toiture et fenêtres. Les choix de finition — comme les planchers, les armoires, la céramique ou encore les matériaux extérieurs — sont modulés selon vos préférences et auront un impact direct sur le budget final.
Pour un budget plus précis
Chaque projet est unique. Pour obtenir un chiffre exact, il faudra soumettre vos plans à un ou plusieurs entrepreneurs généraux de votre secteur. Ils pourront alors vous donner une estimation détaillée, adaptée à vos choix de matériaux et aux réalités locales du marché.
Cela inclus quoi ?
Lors de l’achat de votre plan vous recevrez en format numérique les éléments suivant :
- Une esquisse permettant de visualiser la maison ;
- Un plan technique portant le sceau d’un membre de l’Ordre des technologues professionnels du Québec, utilisable pour la demande de permis, la construction et la soumission.
Important : ne sont pas inclus les plans de plomberie, d’électricité ou de design intérieur, ni les documents d’ingénierie ou d’arpentage. Le choix des matériaux extérieurs demeure entièrement à votre discrétion.
Besoin d'apporter des modifications ?
Vous souhaitez personnaliser ce plan ? Il est possible d’ajouter des modifications selon vos besoins. Une estimation des coûts peut être transmise par courriel sur demande.
Vivez-vous en Ontario ?
Pour les projets en Ontario, une certification BCIN (Building Code Identification) est obligatoire. Sur demande, nous pouvons vous fournir une estimation par courriel afin d’ajouter cette option à votre plan.
Besoin d'une traduction de votre plan en anglais ?
L’option de traduction est offerte pour ce plan. Une estimation des coûts peut être envoyée sur simple demande.









